︎
Grégoire Orliac Architecte & Paysagiste
atelier
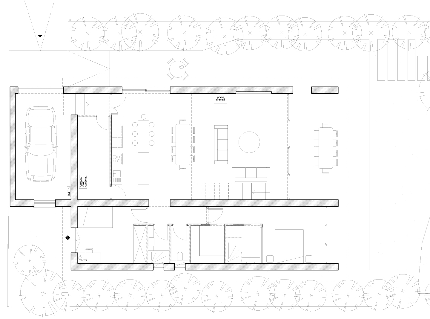
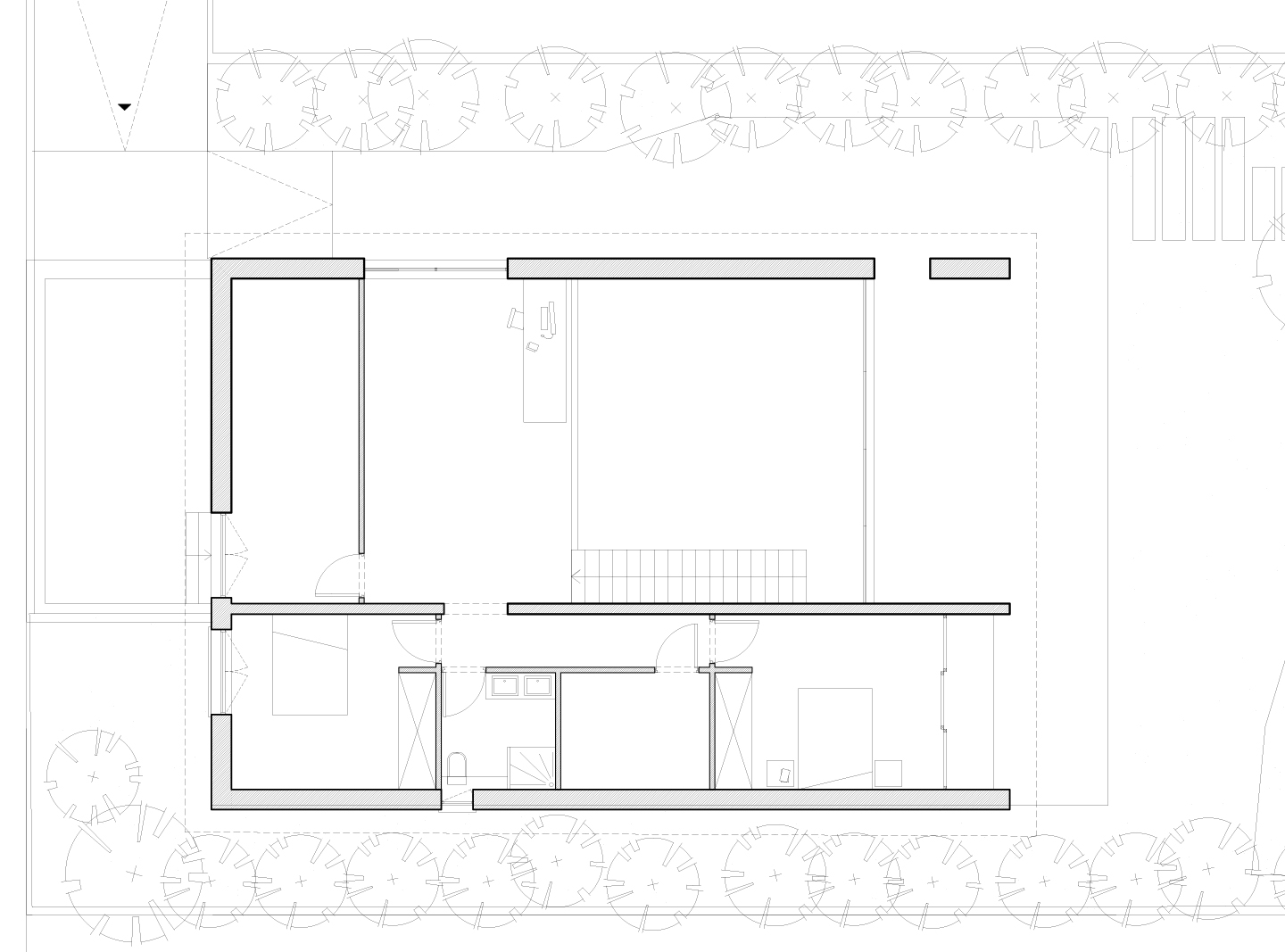
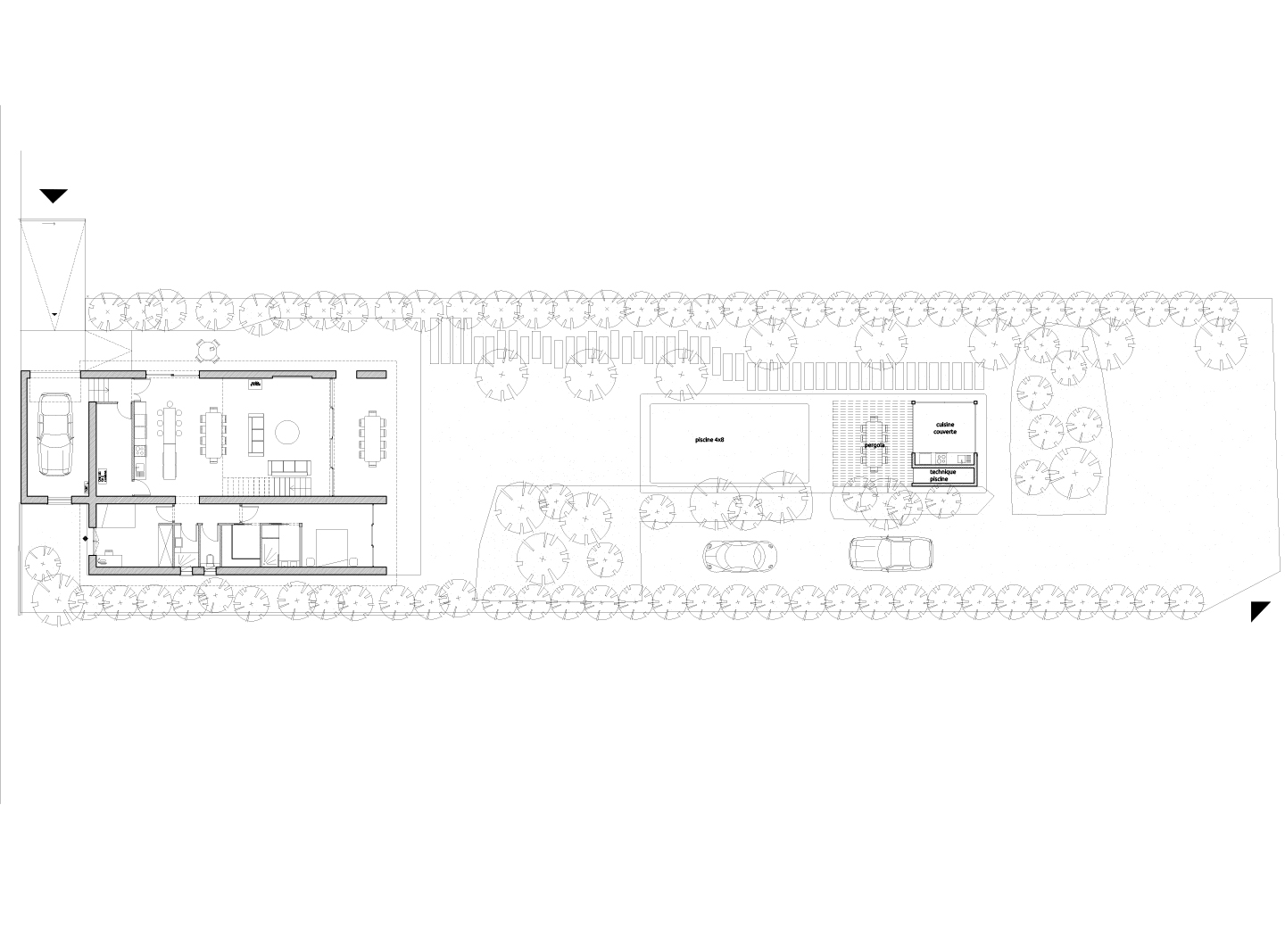
Maison F
Baixas (66), France
2017
Architecte associé Jean ORLIAC